Informacije
- Ažurirano:
- 22 listopada, 2025
- 4 Soba
- 71 m2
- Godina izgradnje: Novogradnja
Opis
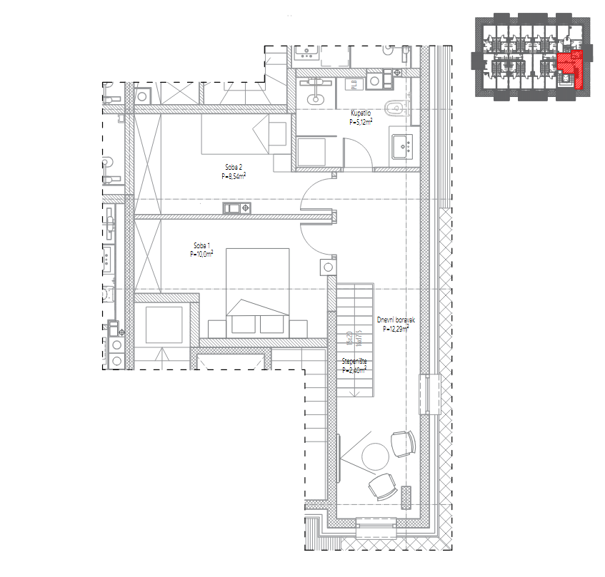
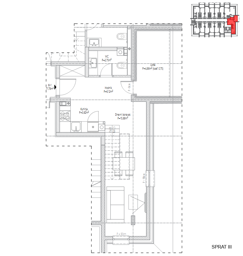
BAULAND prodaje moderan dvoetažni apartman (III-1), smješten na trećem spratu apartmanskog objekta unutar Sportsko-rekreativnog centra Babin do – Bjelašnica. Apartman se nalazi na jednoj od najtraženijih lokacija, okružen prirodnim ljepotama planinskog pejzaža, na nadmorskoj visini od približno 1.300 metara.
Apartman je jugozapadne orijentacije i prostire se na dvije etaže ukupne površine 71,78 m². Na prvoj etaži nalaze se dnevni boravak, kuhinja, hodnik, lođa i toalet, dok su na drugoj etaži smještene dvije spavaće sobe, kupatilo i dnevni boravak. Prostor je pažljivo projektovan kako bi se postigao osjećaj funkcionalnosti, udobnosti i savremenog životnog standarda.
Cijeli objekat izgrađen je u skladu s najnovijim građevinskim standardima, koristeći vrhunske materijale i savremena tehnička rješenja. Poseban akcenat stavljen je na kvalitet gradnje, termičku i zvučnu izolaciju, kao i završnu obradu enterijera. Elementi poput stolarije, podnih obloga i sanitarija odražavaju visok nivo izrade i pažnju prema detaljima, dok sistem etažnog grijanja s podnim zagrijavanjem osigurava komfor tokom cijele godine. Izdvajamo sljedeće karakteristike:
-
Zidovi građeni opekom (ciglani blokovi) debljine 20 cm
-
Vanjska PVC stolarija Salamander Blue Evolution 92mm sa troslojnim staklom ispunjenim argonom
-
Unutrašnja vrata furnirana hrastom, sa okvirom od punog drveta, pune visine do stropa
-
Podovi obloženi vrhunskim hrastovim parketom
-
Kvalitetne sanitarije renomiranog proizvođača Unitas
-
Sigurnosna blindirana vrata Zalmo
-
Video interfon sistem
-
Zasebna brojila za električnu energiju, vodu i plin
-
Lift vrhunske klase KONE sa direktnim pristupom iz garaže
Apartmanski objekat je u potpunosti završen i useljiv, sa završenim tehničkim prijemom i etažiranjem, dok je proces uknjižbe u završnoj fazi. Konkretni apartman III-1 iz oglasa trenutno je u fazi završnih finalnih radova, koji mogu biti okončani u vrlo kratkom roku. Svi ostali apartmani u objektu su u potpunosti završeni i spremni za useljenje. Fotografije u oglasu ne prikazuju direktno apartman III-1, već su postavljene s ciljem da prikažu standard izgradnje, završne obrade i korištene materijale u objektu.
Za kupce koji se odluče na kupovinu putem banke, omogućena je opcija finansiranja preko partnerske ASA banke d.d. Sarajevo, uz jednostavnu proceduru i kolateral isključivo u vidu apartmanske jedinice. Cijene su izražene s uračunatim PDV-om, a s obzirom na to da se radi o novogradnji, ne plaća se porez na promet nekretnina.
Uz apartman je moguće kupiti i garažno mjesto u suterenu objekta, s direktnim pristupom liftu.
Dostupni apartmani
U objektu su trenutno dostupna još četiri od ukupno 37 apartmana, svi smješteni na trećoj etaži:
-
Apartman III-1, površine 71,78 m², po cijeni od 3.850 KM/m²
-
Apartman III-8, površine 45,91 m², po cijeni od 4.050 KM/m²
-
Apartman III-9, površine 54,56 m², po cijeni od 4.050 KM/m²
-
Apartman III-12, površine 50,74 m², po cijeni od 4.200 KM/m²
Ne propustite priliku da investirate u srcu netaknute prirode, čistog zraka i sve popularnije destinacije za zimski i ljetni turizam. Bilo da tražite ličnu oazu mira ili planirate profitabilno iznajmljivanje i buduću preprodaju, ovo je prilika koju ne želite propustiti.
Dodatne informacije
Za detaljne informacije o dostupnim apartmanima, za rezervaciju ili zakazivanje termina obilaska, kontaktirajte našeg agenta putem telefona ili e-maila:
Agent: Adis Efendić
Kontakt telefon: +387/62 300-402
E-mail: info@bauland.ba
Broj licence agenta: 01-01.1-236/24
Bauland d.o.o. Sarajevo




































